
MIL-DTL-2845E (SH)
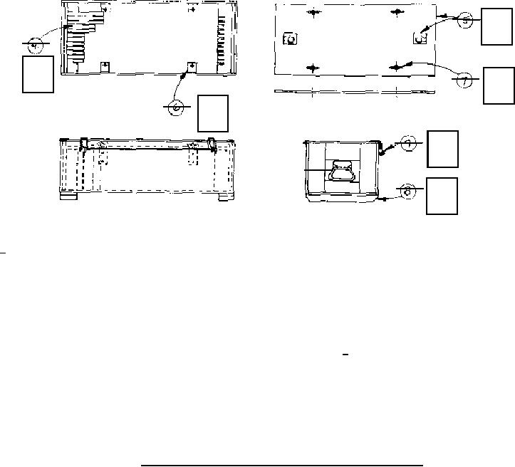
2
1
4
3
6
5
41.
Blade separator guides. Clearance between gauges shall permit ease of gauge removal
2.
Trays, when included, shall be provided with lifting provision, handles, lift rings, or
drilled holes for finger access.
3.
Shelf brackets depicted are of metal "L" angles. Wood interior battens (framing) are also
acceptable. See MIL-B-233 covering accessory framing and trays.
4.
Shelf wing nut (4) locking device shown. Battens (framing) secured to the underside of the
container cover to hold the shelf in place are also acceptable.
5.
Wood skids in accordance with PPP-B-621 shall be included.
6.
Snap-type trunk shown with locking bar.
NOTES:
1. Construction and materials in accordance with MIL-B-233, type W,; wood container in
accordance
with PPP-B-621, style 2, 2-1/2, or 3 with style optional.
2. Rope handles not permitted.
FIGURE 18.
Propeller gauge reusable container (see 3.17).
52
For Parts Inquires call Parts Hangar, Inc (727) 493-0744
© Copyright 2015 Integrated Publishing, Inc.
A Service Disabled Veteran Owned Small Business